משמר הגבול
פרויקט משמר הגבול 6 ירושלים – תמ"א 38
*הבניה בעיצומה – מכירת הדירות בעיצומה*
חברת דור המייסדים שותפות רשומה- מקבוצת אורבניטופ
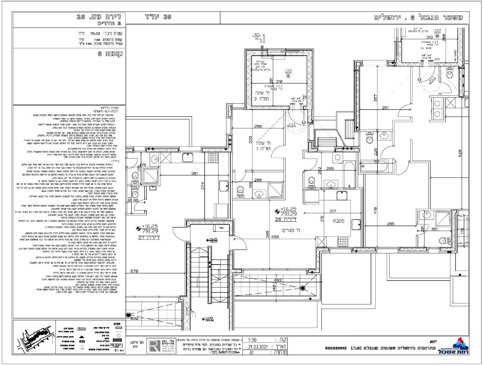
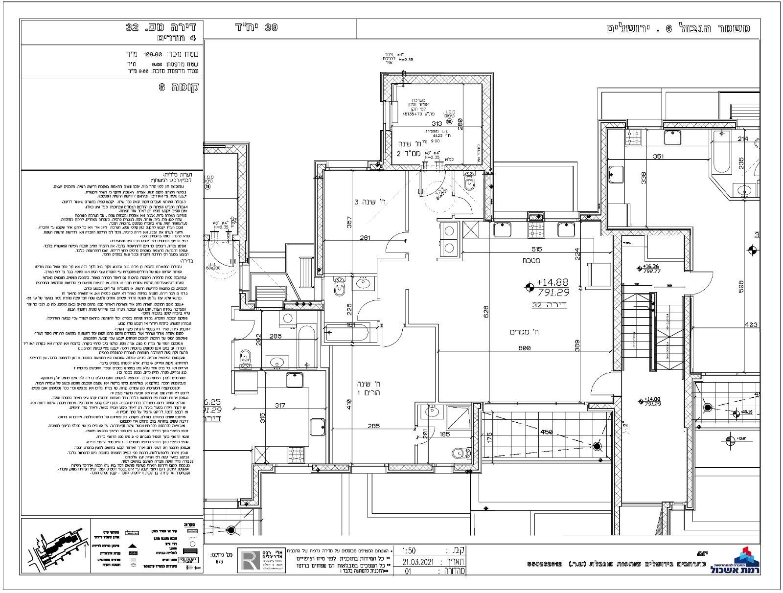
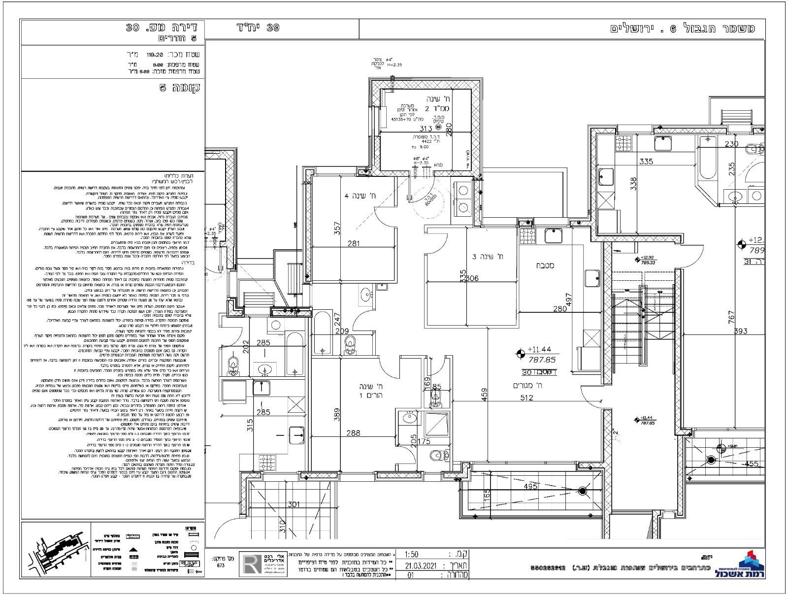
מקימה את פרויקט משמר הגבול - הבניין נבחר בגין התאמתו המושלמת לביצוע תמ"א, לנוחות הדיירים הבניין עובר שינוי ושידרוג של כל השטחים הציבוריים, חדר המדרגות נבנה מחדש עם מעליות חדשניות ומהירות,
בפרויקט לובי מפואר, חניות לכל דירה, ופיתוח סביבתי עדכני.
| סטטוס פרויקט | אדריכל הפרויקט | משרד מכירות | מנהל פרויקט | תאריך תחילת ביצוע | תאריך סיום מתוכנן |
|---|---|---|---|---|---|
| לקראת סיום | אלי רכס אדריכלים | עיר המוריה אלישבע סולוביצ'יק -025814666 | Y.H. ניהול פרויקטים | ינואר 2022 | יוני 2024 |



















